home page > Annunci immobiliari in Italia > Veneto > Verona > Sant'Ambrogio di Valpolicella > Case e ville indipendenti in vendita > Scheda immobile

Case e ville indipendenti in vendita a Sant'Ambrogio di Valpolicella

COMPILA IL MODULO SOTTOSTANTE PER RICEVERE MAGGIORI INFORMAZIONI







Invia la richiesta ad altre agenzie
Accetto il trattamento dei miei dati



Studio san lorenzo srl

Via carlo alberto dalla chiesa 9
37026 Pescantina (VR)

0456701700    Riferimenti: Claudio Bottura

Sant'Ambrogio di Valpolicella
Prezzo: € 680.000
290



Descrizione:
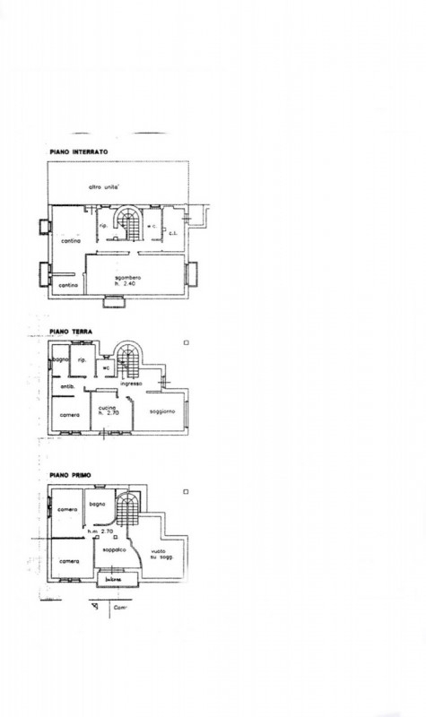
Villa singola con vista lago e ampio giardino a san giorgio ingannapoltronin una delle zone più suggestive e panoramiche della valpolicella, nel rinomato borgo di san giorgio ingannapoltron, inserito tra i borghi più belli d'europa, proponiamo in vendita villa singola di circa 290 mq commerciali, immersa nella tranquillità e nella natura, ma a pochi chilometri dai principali servizi.la proprietà si sviluppa su due livelli fuori terra oltre a piano interrato, ed è circondata da un ampio giardino privato di circa 500 mq, ideale per momenti di relax all'aperto, con possibilità di realizzare una piscina.composizionepiano terraluminosa e accogliente zona giorno con pavimenti in marmocucina separata da tramezza (possibilità di creare un ampio open space)due camere da lettodue bagni finestratipiano primosoppalco utilizzabile come disbrigo o zona studiodue camere matrimonialiampio bagnopiano interratogrande taverna finestratacantina spaziosa e finestratalocale tecnicoripostigliobagno di serviziocompletano la proprietà una comoda autorimessa di 55 mq con basculante elettrica.caratteristiche e finiturestruttura in cemento armatoinfissi in doppio vetro con scuri in legnoinferiate di sicurezza e porta blindatapavimenti in marmo nella zona giorno e legno nella zona notteimpiantistica e finiture risalenti ai primi anni '90aria condizionatariscaldamento a pavimentoimpianto di aspirazione canalizzatopunti di forzasplendida vista lagoottima esposizione solarecontesto tranquillo e riservatoa pochi minuti dai principali serviziuna villa luminosa e dal grande potenziale, perfetta per chi desidera una soluzione indipendente, con spazi ampi, immersa nel verde e con una vista mozzafiato sul lago di garda.




Caratteristiche immobile:
Codice inserzione: 1760669928
Rif. Annuncio: 4643561
Provincia: Verona
Comune: Sant'Ambrogio di Valpolicella
Zona: San Giorgio  
Superficie (Mq) : 290 Mq.
Tipo immobile: Case e ville indipendenti

Costi:
Prezzo € 680.000


Efficienza energetica: