home page > Annunci immobiliari in Italia > Veneto > Verona > Sona > appartamenti in vendita > Scheda immobile

Appartamento in vendita a Sona

COMPILA IL MODULO SOTTOSTANTE PER RICEVERE MAGGIORI INFORMAZIONI







Invia la richiesta ad altre agenzie
Accetto il trattamento dei miei dati



Immobilare urbani

Pelacane, 3
37060 Sona (VR)

0458680793    0458699147    Riferimenti: Urbani Andrea

Sona
Prezzo: € 375.000
2
153



Descrizione:
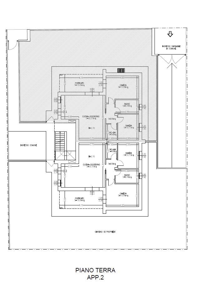
Lugagnano. Appartamento al piano terra con ingresso indipendente in contesto di sole 4 unità abitative in corso di costruzione, in una graziosa zona residenziale adiacente ad un grande parco pubblico. l'appartamento è composto da soggiorno con angolo cottura con ampio porticato esterno, spaziosa camera matrimoniale, seconda camera, bagno, bagno/lavanderia, disimpegno e giardino di 240 mq c.a.. il prezzo si intende comprensivo di comodo garage doppio in larghezza. la costruzione verrà realizzata con materiali e tecnologie di ultima generazione tali da garantire un ottimo comfort abitativo ed un consistente risparmio energetico. Classe energetica a4. possibilità di personalizzazione di spazi e finiture.consegna dicembre 2026. Rif. L 16 t.attenzione: si fa presente, nonostante sia stata posta la massima meticolosità per garantire la precisione e la correttezza del contenuto di questo annuncio che lo stesso non ha alcun valore in sede contrattuale.classe energetica:




Caratteristiche immobile:
Codice inserzione: 1767139842
Rif. Annuncio: V000945
Provincia: Verona
Comune: Sona
Superficie (Mq) : 153 Mq.
Tipo immobile: Appartamento
Camere: 2

Costi:
Prezzo € 375.000


Efficienza energetica: