home page > Annunci immobiliari in Italia > Veneto > Verona > Valeggio sul Mincio > Case e ville indipendenti in vendita > Scheda immobile

Case e ville indipendenti in vendita a Valeggio sul Mincio

COMPILA IL MODULO SOTTOSTANTE PER RICEVERE MAGGIORI INFORMAZIONI







Invia la richiesta ad altre agenzie
Accetto il trattamento dei miei dati



Renova castelnuovo

Via xxv aprile, 3
37014 Castelnuovo del Garda (VR)

0452051392

Valeggio sul Mincio
Prezzo: € 600.000
3
2
228
Piano terra



Descrizione:
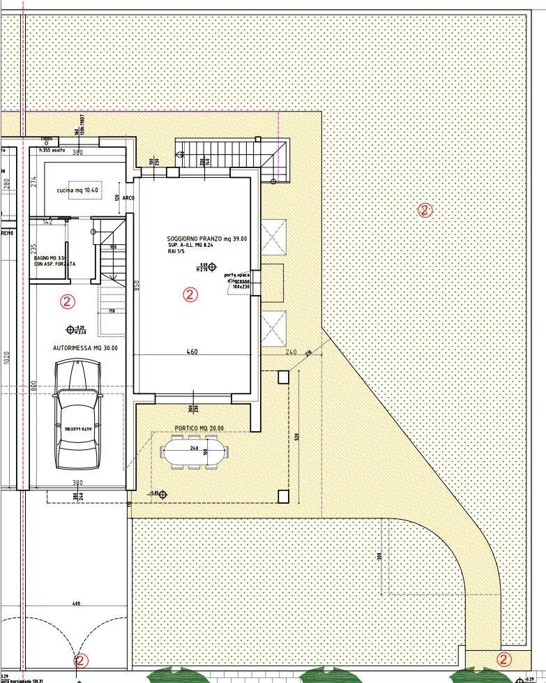
In posizione collinare, tranquilla e soleggiata, proponiamo elegante porzione di bifamiliare di nuova costruzione, immersa nel verde delle colline moreniche e con vista panoramica mozzafiato.la villa, sviluppata su due livelli ed esposta a sud, offre spazi moderni, luminosi e pensati per il massimo comfort.al piano terra troviamo un ampia zona soggiorno-pranzo con affaccio sul porticato coperto, cucina abitabile e bagno di servizio. Il giardino privato di 350 mq si sviluppa sui tre lati dell'abitazione ed è predisposto per un eventuale piscina. Proseguendo al piano primo, troviamo la zona notte composta da camera matrimoniale con bagno en suite e/o cabina armadio, camera doppia, camera singola, uno studio, bagno ed una splendida terrazza abitabile di 30 mq con vista panoramica.a completare la proprietà spaziosa taverna nell'interrato e garage al piano terra.nel suo insieme l'immobile è composto da:- ampio soggiorno con cucina abitabile- tre camere da letto - studio- tre bagni- terrazza di 30 mq- porticato coperto - giardino di 350 mq- taverna- garageottimo capitolato costruttivo - finiture interne personalizzabili a scelta dell'acquirente - possibilità di realizzare una piscina privata - serramenti in pvc basso emissivi - portone sezionale - impianto fotovoltaicoquesta soluzione è ideale per chi desidera una residenza moderna, immersa nella tranquillità e nel verde, senza rinunciare a spazi generosi, funzionalità e stile!nel caso in cui dovessi vendere il tuo immobile e prenotare la nuova abitazione ti offriamo il nostro servizio di - valutazione gratuita - per permetterti di fare questo importante passaggio nella massima tranquillità!prezzo richiesto: eu. 600.000classe energetica: a4riferimento: 04 classe energetica: a4




Caratteristiche immobile:
Codice inserzione: 1764132714
Rif. Annuncio: 004
Provincia: Verona
Comune: Valeggio sul Mincio
Zona: Santa Lucia  
Superficie (Mq) : 228 Mq.
Tipo immobile: Case e ville indipendenti
Stato immobile: nuovo
Piano: Piano terra
Camere: 3
Garage: Singolo
Bagni: 2
Terrazze: 1

Costi:
Prezzo € 600.000


Efficienza energetica: