home page > Annunci immobiliari in Italia > Veneto > Vicenza > Altavilla Vicentina > appartamenti in vendita > Scheda immobile

Appartamento in vendita a Altavilla Vicentina

COMPILA IL MODULO SOTTOSTANTE PER RICEVERE MAGGIORI INFORMAZIONI







Invia la richiesta ad altre agenzie
Accetto il trattamento dei miei dati



Creazzo case srl

Viale italia 153
36051 Creazzo (VI)

0444349133    Riferimenti: Andrea Gianello

Altavilla Vicentina
Prezzo: € 280.000
A4
2
2
125
Piano terra



Descrizione:
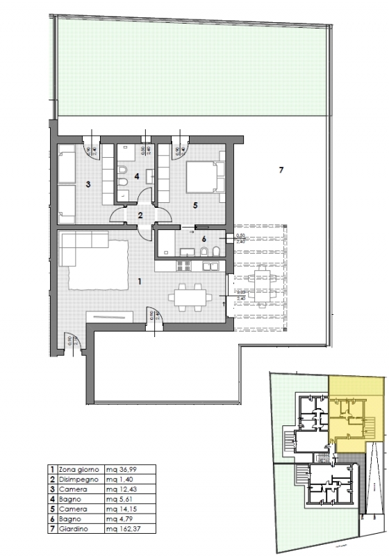
Se stai cercando un'abitazione moderna, con ampi spazi e inserita in un piccolo contesto residenziale nel cuore di altavilla vicentina, questa nuova proposta potrebbe fare al caso tuo. in zona piscine, sta per nascere un nuovo complesso abitativo composto da sole 6 unità, tutte pensate per offrirti comfort e una qualità di vita superiore: giardino privato o grande terrazzo, ampie vetrate che assicurano ambienti luminosi e accoglienti, garage doppi e cantina.le abitazioni saranno classe a4, completamente full electric e dotate di impianto fotovoltaico, pensate per offrirti risparmio e sostenibilità nel tempo. l'unità 3 delle residenze orlando si sviluppa al piano terra ed è cosù composta: luminosa zona giorno in open space, con grande vetrata che si affaccia sulla zona esterna ideale per organizzare pranzi e cene in compagnia. Tramite un pratico disimpegno si accede alla zona notte composta da due camere di cui una con bagno en suite, e un pratico bagno principale.completa l'abitazione un garage doppio per parcheggiare comodamente le tue auto.




Caratteristiche immobile:
Codice inserzione: 1758250435
Rif. Annuncio: RA2K3
Provincia: Vicenza
Comune: Altavilla Vicentina
Superficie (Mq) : 125 Mq.
Tipo immobile: Appartamento
Stato immobile: nuovo
Anno costruzione/ristrutturazione: 2027
Piano: Piano terra
Camere: 2
Garage: Doppio
Bagni: 2

Costi:
Prezzo € 280.000


Efficienza energetica:
Classe energetica: A4
Riscaldamento: autonomo a pavimento