home page > Annunci immobiliari in Italia > Veneto > Vicenza > Arzignano > Attività commerciali in vendita > Scheda immobile

Attività commerciali in vendita a Arzignano

COMPILA IL MODULO SOTTOSTANTE PER RICEVERE MAGGIORI INFORMAZIONI







Invia la richiesta ad altre agenzie
Accetto il trattamento dei miei dati



Quimmo agency

Via galileo galilei 6
48018 Faenza (RA)

0299944698

Arzignano
Prezzo: € 1.187.500
3
1913



Descrizione:
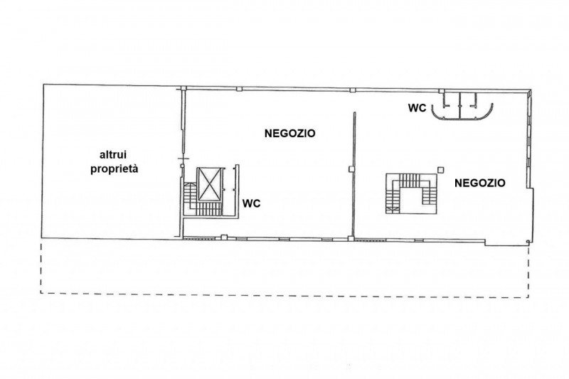
Edificio commerciale sito ad arzignano (vi), viale vicenza 8. Zona semicentrale strategica ben servita. Struttura di prestigio realizzata nel 1992 con comodi spazi interni. Fabbricato su tre livelli di cui uno interrato servito da rampa scoperta. I piani terra e primo sono invece accessibili dal portico con area esterna destinata a parcheggio fronte strada. Livelli collegati da scale e montacarichi. Agibilità rilasciata.piani terra e primo sono destinati a negozio con aree espositive ben illuminate, wc e scale.parte del piano primo ospita un appartamento con accesso autonomo di altrui proprietà.piano interrato adibito ad ampio magazzino con servizi wc, rampa e portone carrabile.finiture standard idonee alle attività. Impianti autonomi a norma e suddivisi per unità.condizioni buone. Beni mobili e attrezzature esclusi dalla vendita.superficie commerciale: 1913 mq circaedificio commercialepiano terra: 593,20 mqpiano primo: 451,15 mqpiano interrato: 856,80 mqportico: 36,80 mq (ragguagliati a 12,14 mq)piena proprietà di:(cf): foglio 12 particella 3 subalterno 6 d/8proposti anche cessione aziendale e vendita in blocco. Visita le seguenti pagine:[edificio commerciale e azienda di tessuti](https:// aziendale nel campo dei tessuti](https:// minima: 1187500 euro.




Caratteristiche immobile:
Codice inserzione: 1757386690
Rif. Annuncio: 2537066
Provincia: Vicenza
Comune: Arzignano
Superficie (Mq) : 1913 Mq.
Tipo immobile: Attività commerciali
Stato immobile: usato
Anno costruzione/ristrutturazione: 1992
Bagni: 3

Costi:
Prezzo € 1.187.500


Efficienza energetica:
Riscaldamento: autonomo