Descrizione:
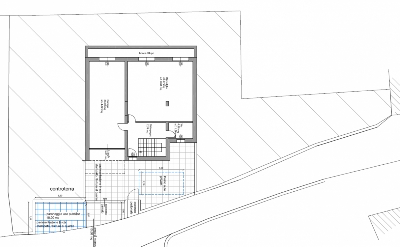
Bassano del grappa a 5 km dal centro storico, proponiamo una casa singola sviluppata su unico piano abitativo situata lungo la suggestiva passeggiata del brenta. questa residenza, attualmente in fase di costruzione, ha una vista impareggiabile sul fiume brenta grazie alle sue generose terrazze e alle ampie vetrate. L'immobile è circondato da un ampio giardino, che crea uno spazio privato in sintonia con la natura.la villa si sviluppa su due livelli, coprendo una superficie di circa 340 mq, escludendo portici e logge. Sarà completata con rifiniture di alta qualità e consegnata in classe energetica a4, garantendo efficienza e sostenibilità energetica.inoltre, l'arredo personalizzato e la scelta dei materiali può essere fatta su misura con un designer-arredatore che ci affianca in questo progetto per avere un prodotto unico chiavi in mano! per ulteriori dettagli e progetti si invita a prendere un appuntamento presso la nostra agenzia.si precisa che le informazioni contenute nel presente annuncio non costituiscono presupposto contrattuale ed alcuni dati descrittivi (rendering, planimetria, posizione, metratura, immagini) potrebbero essere indicativi ed usati a titolo esemplificativo. Le nostre addette alle vendite saranno a completa disposizione per fissare un appuntamento e dare maggiori chiarimenti in merito. Non resta che contattarci allo o inviare una email all'indirizzo !