home page > Annunci immobiliari in Italia > Veneto > Vicenza > Chiuppano > Negozi uffici capannoni in affitto > Scheda immobile

Negozi uffici capannoni in affitto a Chiuppano

COMPILA IL MODULO SOTTOSTANTE PER RICEVERE MAGGIORI INFORMAZIONI







Invia la richiesta ad altre agenzie
Accetto il trattamento dei miei dati



Studio dl srl

Via luigi dalla via 5/d
36015 Schio (VI)

0445520611    Riferimenti: Dario Dall'Igna

Chiuppano
Prezzo: € 55.000
13000



Descrizione:
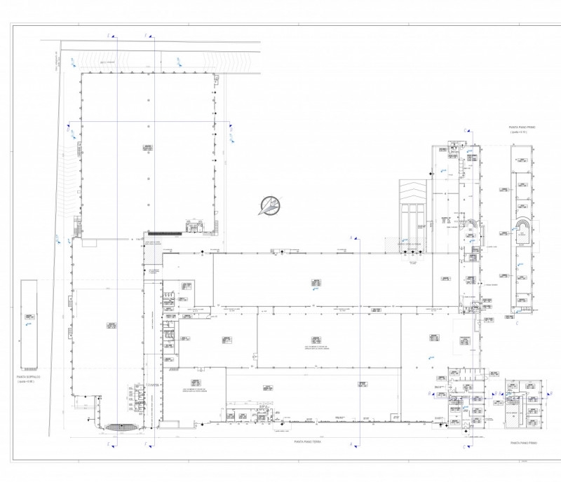
Proponiamo in locazione un ampio capannone industriale di 13.000 mq, con possibilità di frazionamento in tre blocchi distinti per adattarsi a diverse necessità produttive e logistiche.ubicazione strategica: l'immobile si trova in una posizione comoda per i trasporti e le attività industriali, garantendo facilità di accesso per mezzi pesanti e operazioni di carico/scarico. A soli 150m dal casello autostradale di piovene rocchette.blocco 1 5.000 mq, altezza 11 mblocco 2 5.000 mq, altezza 5,5 mblocco 3 3.000 mq, altezza 5 mcaratteristiche principali:- frazionabile in moduli indipendenti- ampie altezze per stoccaggio e produzione- spazi adatti a diverse tipologie di attività industriali e logistiche- possibilità di personalizzazione in base alle esigenze del conduttore- una soluzione ideale per aziende alla ricerca di flessibilità e ampi spazi in un'area industriale ben servita.per maggiori informazioni o per organizzare una visita:studio dl tel cell email:




Caratteristiche immobile:
Codice inserzione: 1758596397
Rif. Annuncio: 38
Provincia: Vicenza
Comune: Chiuppano
Superficie (Mq) : 13000 Mq.
Tipo immobile: Negozi uffici capannoni
Stato immobile: usato
Anno costruzione/ristrutturazione: 1985

Costi:
Prezzo € 55.000


Efficienza energetica: