home page > Annunci immobiliari in Italia > Veneto > Vicenza > Grisignano di Zocco > appartamenti in vendita > Scheda immobile

Appartamento in vendita a Grisignano di Zocco

COMPILA IL MODULO SOTTOSTANTE PER RICEVERE MAGGIORI INFORMAZIONI







Invia la richiesta ad altre agenzie
Accetto il trattamento dei miei dati



Houselife

Via lago di garda 80
36015 Schio (VI)

0445.575106    Riferimenti: INFO

Grisignano di Zocco
Prezzo: € 402.000
A4
3
2
190
98



Descrizione:
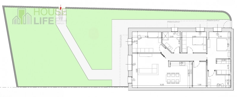
Grisignano di zocco in nuovo e tranquillo contesto residenziale, appartamento tricamere con giardino privato, ampie metrature e finiture personalizzabili. Nuova costruzione in classe energetica a4. Euro 402.000tre buoni motivi per acquistare questo immobile:1) contesto residenziale vicino ai principali servizi2) appartamenti spaziosi, ben rifiniti e con spazi esterni privati3) nuova costruzione in classe a4 con impianti di ultima generazioneproponiamo in vendita appartamento tricamere al piano terra inserito in un moderno complesso residenziale di nuova costruzione.l'abitazione si compone di ampia zona giorno open space con cucina e soggiorno affacciati sul giardino privato di circa 230 mq, ideale per chi cerca spazi esterni da vivere in piena tranquillità.la zona notte ospita 3 camere da letto, di cui 1 matrimoniale, 1 doppia e 1 singola, doppi servizi finestrati, disimpegno e lavanderia.completa la proprietà un box auto a piano terra. l'appartamento è dotato di impianto fotovoltaico, riscaldamento radiante a pavimento, ventilazione meccanica controllata (vmc) per un maggior comfort abitativo, cappotto termico, predisposizione clima, allarme e domotica, con finiture ancora personalizzabili da capitolato.soluzione ideale per famiglie o coppie che desiderano un'abitazione moderna, efficiente e con spazi ben distribuiti in un quartiere tranquillo ma ben servito.ulteriori informazioni, planimetria e capitolato in ufficio.a tutela della privacy, informiamo che l'indirizzo su questo immobile è puramente indicativo.le immagini sono fornite al solo scopo illustrativo e pubblicitariohouselife re☎️ ✉️




Caratteristiche immobile:
Codice inserzione: 1761187897
Rif. Annuncio: HL1024
Provincia: Vicenza
Comune: Grisignano di Zocco
Superficie (Mq) : 190 Mq.
Tipo immobile: Appartamento
Stato immobile: nuovo
Anno costruzione/ristrutturazione: 2025
Piano: Piano terra
Camere: 3
Garage: Singolo
Bagni: 2 + lavanderia

Costi:
Prezzo € 402.000


Efficienza energetica:
Classe energetica: A4
Riscaldamento: autonomo a pavimento