home page > Annunci immobiliari in Italia > Veneto > Vicenza > Grisignano di Zocco > Case e ville indipendenti in vendita > Scheda immobile

Case e ville indipendenti in vendita a Grisignano di Zocco

COMPILA IL MODULO SOTTOSTANTE PER RICEVERE MAGGIORI INFORMAZIONI







Invia la richiesta ad altre agenzie
Accetto il trattamento dei miei dati



Studio vicenza centro srl

Cesare battisti 35/a
36100 Vicenza

04441452099    Riferimenti: Diego Stragliotto

Grisignano di Zocco
Prezzo: € 285.000
C
3
2
185
1
1



Descrizione:
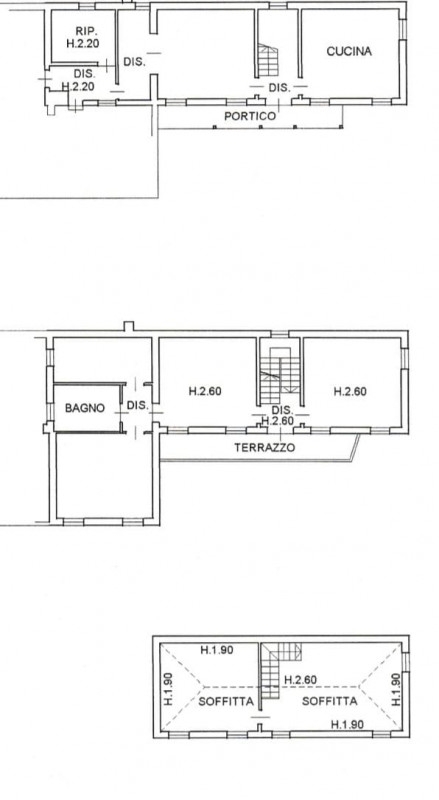
Ubicazione e contestoin posizione strategica a grisignano di zocco, proponiamo casa singola indipendente attualmente in fase di ristrutturazione, situata in una zona comoda alla viabilità principale e a pochi minuti dall'ingresso autostradale. La soluzione si presta perfettamente a chi desidera vivere in un contesto residenziale tranquillo, senza rinunciare alla comodità degli spostamenti verso vicenza, padova e le principali arterie stradali.l'immobile rappresenta un'interessante opportunità per chi cerca una casa completamente indipendente, con ampi spazi interni ed esterni, e la possibilità di personalizzare le finiture in base ai propri gusti e necessità.descrizione e particolaritàattualmente oggetto di una ristrutturazione completa, con consegna prevista indicativamente per la primavera del 2026, l'immobile è stato interessato da interventi su impianti elettrici e idraulici, la totalità degli infissi, le pavimentazioni, le tinteggiature e malte, oltre che la copertura del tetto.viene inoltre data la possibilità all'acquirente di apportare modifiche al capitolato, cosù da personalizzare materiali e finiture secondo le proprie preferenze.l'abitazione si sviluppa su tre livelli.accedendo da ingresso indipendente, si viene accolti da una spaziosa cucina abitabile, con accesso diretto, tramite una bussola di distribuzione, che si dirama verso un vano tecnico, il comodo garage di proprietà, una prima stanza multiuso, ideale come studio o come ulteriore camera da letto, ed un primo bagno di servizio a uso della zona giorno. Dalla parte opposta, troviamo un soggiorno separato, luminoso e ben distribuito. Salendo le scale centrali, si accede al reparto notte, sito al piano primo, cosù composto: camera matrimoniale sulla destra, camera doppia sul lato opposto, un'ampia cabina armadio e infine un bagno finestrato a servizio della zona notte. Al secondo e ultimo piano si apre una stanza mansardata di generose dimensioni, perfetta come terza camera, studio o spazio hobby.cosa sapere dell'immobilequesta casa rappresenta la soluzione ideale per chi desidera indipendenza, personalizzazione e comodità logistica, in un contesto residenziale servito ma tranquillo.a completare la proprietà troviamo un garage di proprietà, con collegamento diretto all'interno, e un giardino privato che abbraccia l'intera casa, garantendo privacy e comfort, ideale per chi cerca uno spazio esterno da vivere in famiglia o con amici. I lavori di ristrutturazione effettuati permettono di avere una casa di gusto moderno, con le caratteristiche necessarie per garantire un ottimo spazio vivibile e pronto da essere abitata.come contattarciper ricevere maggiori informazioni o prenotare una visita in cantiere, contattaci al numero o invia un messaggio whatsapp al




Caratteristiche immobile:
Codice inserzione: 1762401360
Rif. Annuncio: 4685577
Provincia: Vicenza
Comune: Grisignano di Zocco
Superficie (Mq) : 185 Mq.
Tipo immobile: Case e ville indipendenti
Stato immobile: ristrutturato
Anno costruzione/ristrutturazione: 1967
Piano: 1
Camere: 3
Garage: Singolo
Posti auto scoperti: 1 posto auto
Bagni: 2 + lavanderia
Terrazze: 1

Costi:
Prezzo € 285.000


Efficienza energetica:
Classe energetica: C
Indice di prestazione energetica (EPgl): 66.36 kWh/mq annui
Riscaldamento: autonomo