home page > Annunci immobiliari in Italia > Veneto > Vicenza > Lonigo > Case e ville indipendenti in vendita > Scheda immobile

Case e ville indipendenti in vendita a Lonigo

COMPILA IL MODULO SOTTOSTANTE PER RICEVERE MAGGIORI INFORMAZIONI







Invia la richiesta ad altre agenzie
Accetto il trattamento dei miei dati



Kairos srl

Via roveggia 29/c
37121 Verona

3312882664    Riferimenti: Michele Marogna

Lonigo
Prezzo: € 386.000
A4
3
2
151
Piano terra



Descrizione:
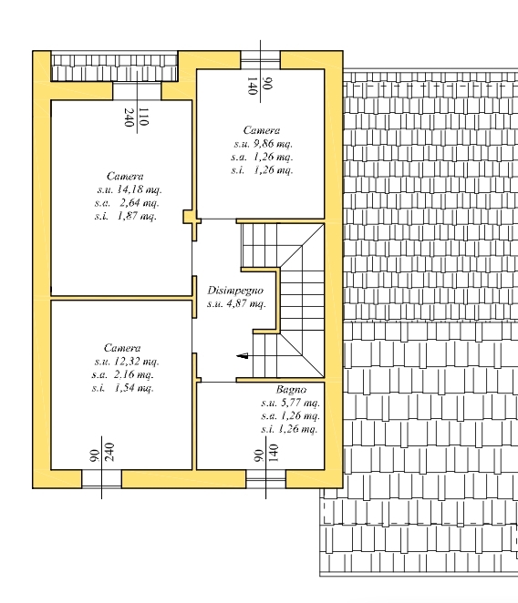
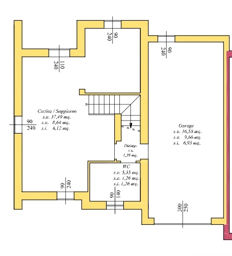
Nel prestigioso contesto residenziale del centro di lonigo, proponiamo in vendita una splendida villa moderna indipendente, ideale per chi desidera vivere in un ambiente elegante e contemporaneo con tutti i comfort. L'immobile si sviluppa su una superficie generosa di 151 mq distribuiti su due livelli ed è caratterizzato da uno stile architettonico attuale che fonde materiali moderni a dettagli tradizionali come le travature in legno a vista e le facciate arricchite da inserti in pietra naturale.la villa dispone di ampie vetrate che garantiscono luminosità agli ambienti interni e affacci sul giardino privato recintato, perfetto per momenti all'aperto o giochi dei bambini. La zona giorno open space offre spazi conviviali ideali per la famiglia e gli ospiti; al piano superiore trovano spazio camere ben dimensionate con finestre dotate di scuri verdi dal design raffinato. Il garage doppio integrato nella proprietà permette comodo accesso diretto alla casa.situata nel pieno centro cittadino ma immersa nella tranquillità della zona residenziale più richiesta, questa soluzione consente facile accesso ai principali servizi quali scuole, negozi, stazione ferroviaria e aree verdi pubbliche raggiungibili comodamente anche a piedi. Nessuna spesa condominiale: totale autonomia gestionale!questa villa rappresenta l'opportunità perfetta sia per famiglie che cercano qualità abitativa elevata sia per chi desidera investire in una posizione strategica vicino alle vie principali pur godendo della privacy tipica delle soluzioni indipendenti.non perdere questa occasione unica! contatta subito l'agenzia immobiliare di riferimento per ricevere maggiori informazioni o fissare una visita senza impegno.




Caratteristiche immobile:
Codice inserzione: 1773632889
Rif. Annuncio: 3PG
Provincia: Vicenza
Comune: Lonigo
Superficie (Mq) : 151 Mq.
Tipo immobile: Case e ville indipendenti
Stato immobile: nuovo
Anno costruzione/ristrutturazione: 2027
Piano: Piano terra
Camere: 3
Garage: Doppio
Bagni: 2 + lavanderia

Costi:
Prezzo € 386.000


Efficienza energetica:
Classe energetica: A4
Riscaldamento: autonomo a pavimento