home page > Annunci immobiliari in Italia > Veneto > Vicenza > Monticello Conte Otto > Terreni in vendita > Scheda immobile

Terreni in vendita a Monticello Conte Otto

COMPILA IL MODULO SOTTOSTANTE PER RICEVERE MAGGIORI INFORMAZIONI







Invia la richiesta ad altre agenzie
Accetto il trattamento dei miei dati



Hitcase di carta geom. Mariano

Via g. Roi 25
36010 Monticello Conte Otto (VI)

+39 0444 946277    3482286760    Riferimenti: Carta geometra Mariano

Monticello Conte Otto
Prezzo: € 108.000
440



Descrizione:
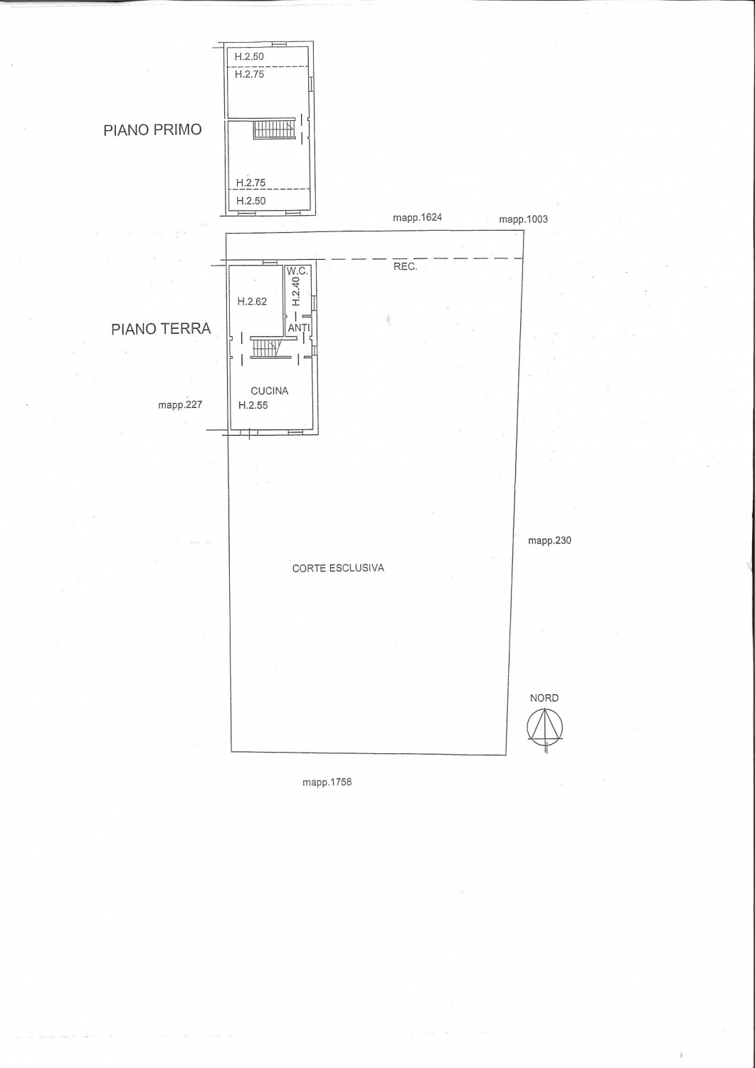
cavazzale terreno mq 440 con piccola costruzione indipendente, in zona tranquilla e servita .e' possibile  la realizzazione di un a palazzina per ricavare due unità abitative con relativi garage oppure una porzione di bifamiliare di ampie dimensioni. E' una ottima opportunità per realizzare una scelta abitativa in una zona tranquilla e servita. Possibile visita previo informazioni in agenzia.




Caratteristiche immobile:
Codice inserzione: 1729716013
Rif. Annuncio: HI798188
Provincia: Vicenza
Comune: Monticello Conte Otto
Superficie (Mq) : 440 Mq.
Tipo immobile: Terreni

Costi:
Prezzo € 108.000


Efficienza energetica:
Classe energetica: Immobile non soggetto all'obbligo di certificazione