home page > Annunci immobiliari in Italia > Veneto > Vicenza > Mussolente > Negozi uffici capannoni in vendita > Scheda immobile

Negozi uffici capannoni in vendita a Mussolente

COMPILA IL MODULO SOTTOSTANTE PER RICEVERE MAGGIORI INFORMAZIONI







Invia la richiesta ad altre agenzie
Accetto il trattamento dei miei dati



Mediocasa immobiliare srl

Str. Porta palio 70/c
37121 Verona

0458012557

Mussolente
Prezzo: € 17.250
D
91
Piano terra



Descrizione:
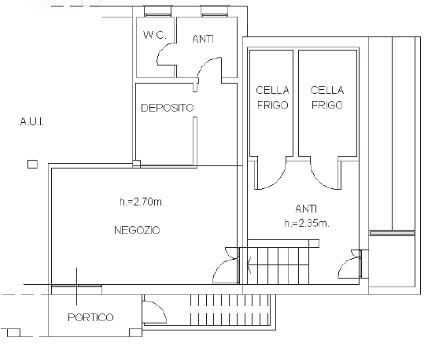
Mussolente (vi) via san pietro 1 - piena proprietà di negozio, oltre strada privata di accesso e transito in comproprietà (per la quota di 1/8), sito a mussolente (vi) in via san pietro n. 1.facente parte di fabbricato composto da due appartamenti, un negozio, un ufficio ed un altro appartamento ad uso agrituristico, l'unità in oggetto, derivante dal frazionamento di un precedente negozio posto al piano terra e dedito alla vendita di fiori, è composta, allo stato, da un unico locale nel quale sono state ricavate due zone tramite paretine ad altezza limitata in cartongesso; una zona è adibita ad ufficio mentre l'altra, posta nella parte retrostante, è adibita a deposito e wc con un anti wc dove è installata la caldaia; nall'anti wc c'è un'uscita che porta alla corte comune retrostante coperta da un pergolato con tenda estensibile (non autorizzato, come anche infra segnalato); di lato all'ingresso del negozio, coperto da un portico, c'è un ripostiglio posto sottoscala; al piano seminterrato, il negozio dispone di un locale deposito con celle frigorifero utilizzate per la conservazione di fiori recisi ed è collegato alla parte retrostante della corte comune part. N. 278 sub 6 mediante una rampa in parte protetta da un cupolino (non autorizzato, come anche infra segnalato).immobile soggetto a e.i. N.ro lotto 2 - tribunale di vicenzaprezzo base d'asta € 23.000,00offerta minima di partecipazione € 17.250,00prossimo esperimento: per visite ed informazioni chiamare il o la nostra agenzia presente da anni sul mercato, ricerca le procedure esecutive e concorsuali fornendo una consulenza tecnico legale, bancaria completa per la partecipazione all'asta per l'acquisto dell'immobile, che comprende:•analisi della procedura esecutiva, valutazione del compendio immobiliare.•assistenza e partecipazione all'asta fino alla chiusura dell'operazione e all'assegnazione dell'immobile tramite, decreto di trasferimento o acquisto con rogito notarile.•ricerca migliore tipologia di finanziamento con gli istituiti di credito convenzionati con il tribunale di verona per l'acquisto dell'immobile in asta.da molti anni garantiamo un servizio sicuro e completo, volto al soddisfacimento della clientela più esigente che spazia dall'investitore al costruttore, dall'azienda multinazionale al privato.ci occupiamo con successo di:•consulenza finanziaria, con ricerca e valutazione di mutui bancari e/o leasing•gestione delle locazioni di patrimoni immobiliari•marketing e comunicazione immobiliarei nostri servizi:•multi-pubblicazione dell'offerta immobiliare sui migliori canali online per la massima visibilità e tempi di conclusione più rapidi•valutazioni immobiliari•certificazioni energetiche, oggi obbligatorie per la vendita e la locazione di tutti gli immobili•verifiche di regolarità urbanistiche e catastalio registrazioni telematiche contratti di locazione (registrazione, rinnovo, proroga, risoluzione) a 50,00 € + ivao registrazioni telematiche contratti di locazione con cedolare secca a 30,00 € + iva




Caratteristiche immobile:
Codice inserzione: 1761015255
Rif. Annuncio: VI05112025
Provincia: Vicenza
Comune: Mussolente
Superficie (Mq) : 91 Mq.
Tipo immobile: Negozi uffici capannoni
Stato immobile: usato
Piano: Piano terra

Costi:
Prezzo € 17.250


Efficienza energetica:
Classe energetica: D
Riscaldamento: autonomo