home page > Annunci immobiliari in Italia > Veneto > Vicenza > Nanto > Case e ville indipendenti in vendita > Scheda immobile

Case e ville indipendenti in vendita a Nanto

COMPILA IL MODULO SOTTOSTANTE PER RICEVERE MAGGIORI INFORMAZIONI







Invia la richiesta ad altre agenzie
Accetto il trattamento dei miei dati



Agenzia immobiliare ivs

Via cattaneo 1
36047 Montegalda (VI)

0444737082    340.7620513    Riferimenti: IVS- DUE S.A.S.

Nanto
Prezzo: € 320.000
A2
3
2
180
Ultimo piano



Descrizione:
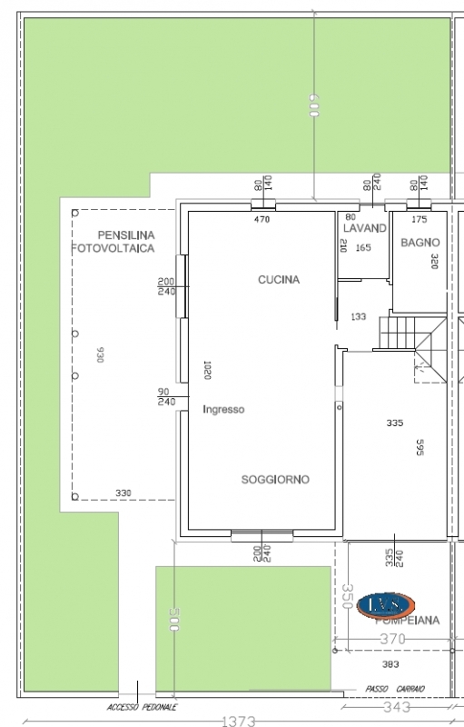
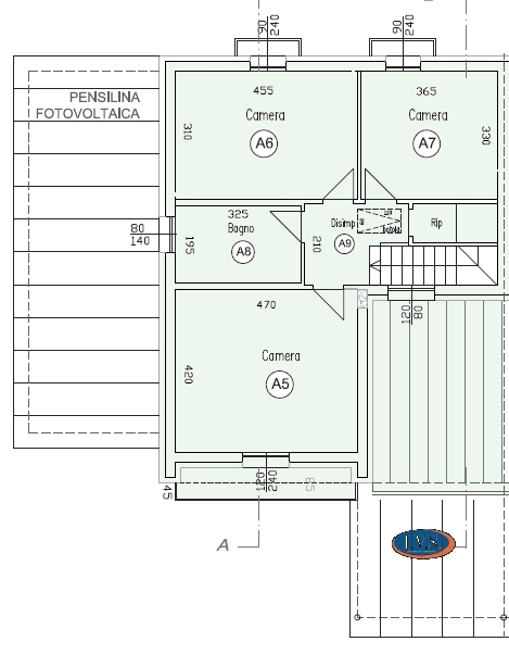
Nanto (vi): proponiamo nuova porzione di bifamiliare con giardino esclusivo di circa 140 mq, per chi cerca una soluzione abitativa che unisca eleganza, comfort e la serenità di un contesto residenziale tranquillo, garantito dalla totale indipendenza.l' abitazione si sviluppa su due piani fuori terra con ingresso su soggiorno con angolo cottura, lavanderia, disimpegno e bagno, accesso diretto al garage con all'esterno pompeiana in legno lamellare e ulteriore pensilina fotovoltaica al piano terra; zona notte con una camera matrimoniale con terrazzo, una camera doppia e una camera singola con poggioli e ampia loggia, bagno, disimpegno e ripostiglio al piano primo.massimo comfort abitativo e di risparmio energetico, oltre a materiali ed isolamenti di ultima generazione, è presente un sistema fotovoltaico da 3 kw, per sfruttare costantemente energia pulita e sostenibile per offrirti un livello di autonomia energetica ottimale.classe energetica prevista a2.per maggiori informazioni e visite agenzia immobiliare i.v.s. Montegalda, tel (rif.mm573)per questioni di privacy la mappa non indica esattamente l'ubicazione dell'immobile, ma e' l'indirizzo di un punto situato nelle vicinanze dell'immobile




Caratteristiche immobile:
Codice inserzione: 1761882682
Rif. Annuncio: MM573
Provincia: Vicenza
Comune: Nanto
Superficie (Mq) : 180 Mq.
Tipo immobile: Case e ville indipendenti
Stato immobile: nuovo
Anno costruzione/ristrutturazione: 2026
Piano: Ultimo piano
Camere: 3
Garage: Singolo
Bagni: 2 + lavanderia
Terrazze: 1

Costi:
Prezzo € 320.000


Efficienza energetica:
Classe energetica: A2