home page > Annunci immobiliari in Italia > Veneto > Vicenza > Orgiano > Terreni in vendita > Scheda immobile

Terreni in vendita a Orgiano

COMPILA IL MODULO SOTTOSTANTE PER RICEVERE MAGGIORI INFORMAZIONI







Invia la richiesta ad altre agenzie
Accetto il trattamento dei miei dati



Agenzia le corti

Via g. Pontedera 1
36045 Lonigo (VI)

0444834734    338.7801143    Riferimenti: Katia Trevisan

Orgiano
Prezzo: € 86.200
862



Descrizione:
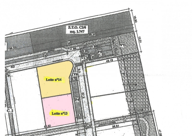
Nel comune di orgiano, proponiamo in vendita due lotti di terreno edificabile residenziale situati in una splendida e tranquilla area di recente sviluppo urbanistico. La posizione è ideale per chi desidera vivere immerso nella quiete della campagna vicentina ma senza rinunciare alla comodità dei servizi principali e delle vie di comunicazione facilmente raggiungibili.i lotti sono completamente urbanizzati, regolari nella forma e pronti per la realizzazione sia di villette singole che bifamiliari moderne ed eleganti.il lotto n.13 offre una superficie catastale di circa 803 mq con possibilità edificatoria fino a 1.855 mc (prezzo richiesto €80.300 trattabili). Il lotto n.14 dispone invece di circa 862 mq con capacità edificatoria pari a 1.990 mc (prezzo richiesto €86.200 trattabili).la zona si distingue per un ambiente sereno e sicuro ideale anche per famiglie; nelle immediate vicinanze troviamo scuole, negozi locali e aree verdi attrezzate dove svolgere attività all'aperto.questa soluzione rappresenta un'opportunità unica sia per privati che intendono costruire la casa dei propri sogni su misura sia per investitori interessati allo sviluppo immobiliare in uno dei comuni più apprezzati della provincia berica.per maggiori informazioni o fissare un appuntamento presso il nostro ufficio non esitate a contattarci: saremo lieti di fornirvi ogni dettaglio necessario!




Caratteristiche immobile:
Codice inserzione: 1776047641
Rif. Annuncio: LEDIF44
Provincia: Vicenza
Comune: Orgiano
Superficie (Mq) : 862 Mq.
Tipo immobile: Terreni

Costi:
Prezzo € 86.200


Efficienza energetica: