home page > Annunci immobiliari in Italia > Veneto > Vicenza > Pojana Maggiore > Case e ville a schiera in vendita > Scheda immobile

Case e ville a schiera in vendita a Pojana Maggiore

COMPILA IL MODULO SOTTOSTANTE PER RICEVERE MAGGIORI INFORMAZIONI







Invia la richiesta ad altre agenzie
Accetto il trattamento dei miei dati



Noventa vicentina

Via matteotti 113
36025 Noventa Vicentina (VI)

0444887063

Pojana Maggiore
Prezzo: € 139.000
1
80



Descrizione:
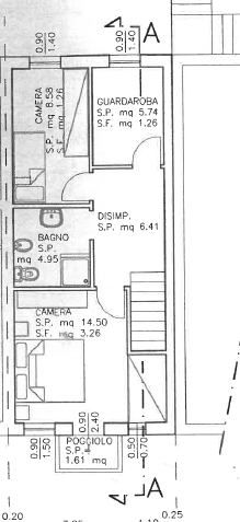
In zona tranquilla di pojana, proponiamo casetta a schiera disposta su due livelli, funzionale e comoda ai principali servizi.al piano terra si trova un soggiorno con cucina open space, pratico e ben distribuito. Al primo piano sono presenti due camere da letto, un bagno e un ripostiglio.all?esterno è presente un piccolo scoperto privato.l?immobile si trova in contesto tranquillo e facilmente accessibile.una soluzione semplice e funzionale, adatta a chi cerca un?abitazione indipendente di dimensioni contenute in una zona comoda e ben servita.a tutela della privacy l'indirizzo indicato non corrisponde all'esatta posizione dell'immobile. Per maggiori informazioni chiamare la ns. Sede professionecasa di noventa vicentina in via matteotti n° 113, al numero rif. P151




Caratteristiche immobile:
Codice inserzione: 1761871204
Rif. Annuncio: Rif P151VRG
Provincia: Vicenza
Comune: Pojana Maggiore
Superficie (Mq) : 80 Mq.
Tipo immobile: Case e ville a schiera
Bagni: 1

Costi:
Prezzo € 139.000


Efficienza energetica: