home page > Annunci immobiliari in Italia > Veneto > Vicenza > Rossano Veneto > appartamenti in vendita > Scheda immobile

Appartamento in vendita a Rossano Veneto

COMPILA IL MODULO SOTTOSTANTE PER RICEVERE MAGGIORI INFORMAZIONI







Invia la richiesta ad altre agenzie
Accetto il trattamento dei miei dati



Casassieme

Via alberon 9/d
31030 Castello di Godego (TV)

3519461797    Riferimenti: CasAssieme di AP 2.0

Rossano Veneto
Prezzo: € 298.000
A4
3
2
165
98
1



Descrizione:
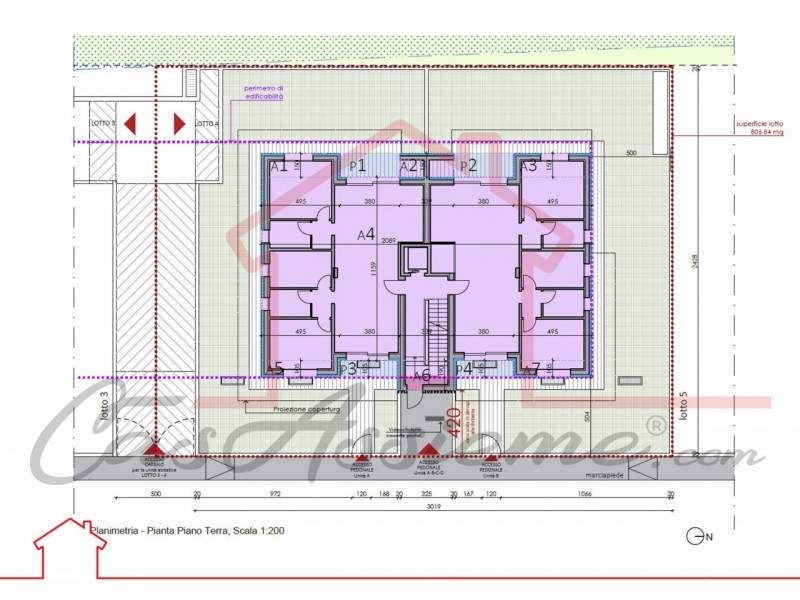
Rif. Ah024chiavi in mano - prossima costruzionein una splendida zona residenziale in fase di riqualificazione, comoda a scuole, palestra, ufficio postale e tutti i principali servizi, proponiamo in vendita appartamenti tricamere al piano terra con ingresso indipendente all'interno di un esclusivo complesso residenziale di sole 5 unità abitative, progettato con tecnologie di ultima generazione e finiture di altissimo livello per offrirti comfort, eleganza e massimo risparmio energetico.l'immobile tipo si sviluppa su un unico livello di circa 100 mq, offrendo spazi moderni, luminosi e perfettamente organizzati; l'ingresso accoglie in una zona living open space di oltre 48 mq, caratterizzata da ampie vetrate che donano grande luminosità e collegano l'interno al grazioso portico esterno, perfetto per momenti di relax o convivialità all'aperto, mentre il giardino privato di circa 250 mq regala un ambiente esclusivo e indipendente, ideale per chi desidera vivere il comfort di una casa moderna con tutto lo spazio esterno che serve a una famiglia.la zona notte è composta da tre camere spaziose (una matrimoniale, una doppia e una singola), bagno principale e secondo bagno/lavanderia, entrambi finestrati per una massima funzionalità.al piano interrato ogni unità dispone di un ampio garage di circa 55 mq, adatto ad almeno 3 auto, con possibilità di avere una pratica cantina separata di oltre 20 mq, ideale come deposito o locale hobby (in base alla soluzione scelta).tra le principali dotazioni troviamo riscaldamento a pavimento suddiviso per ambienti, pompa di calore elettrica abbinata a impianto fotovoltaico da 4 kw, cappotto termico da 14 cm, predisposizione per impianto d'allarme e climatizzazione bi-zona, serramenti performanti e isolamento termoacustico avanzato, finiture e rivestimenti personalizzabili con materiali top di gamma e molto altro...consegna chiavi in mano al prezzo esposto, con la possibilità di personalizzare completamente ogni ambiente per creare la casa dei tuoi sogni, unica e su misura!soluzioni ideali per chi cerca indipendenza, efficienza e qualità costruttiva superiore > classe energetica a4.consegna prevista entro fine 2026.link: https://s.xgest.it/dhpu2per info e vendite: n.b.: l'indirizzo citato nel presente annuncio è puramente indicativo della zona, al fine di tutelare la privacy dei nostri clienti.




Caratteristiche immobile:
Codice inserzione: 1763351542
Rif. Annuncio: AH024
Provincia: Vicenza
Comune: Rossano Veneto
Superficie (Mq) : 165 Mq.
Tipo immobile: Appartamento
Stato immobile: nuovo
Anno costruzione/ristrutturazione: 2026
Piano: Piano terra
Camere: 3
Garage: Doppio
Posti auto scoperti: 1 posto auto
Bagni: 2 + lavanderia

Costi:
Prezzo € 298.000


Efficienza energetica:
Classe energetica: A4
Riscaldamento: autonomo a pavimento