Descrizione:
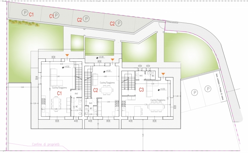
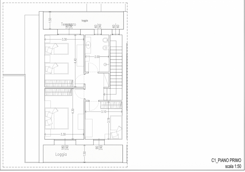
Casa a schiera di testa c1trattative riservate immobiliare unica colceresa via marconi sarcedo casa di testa con giardino a pochissima distanza da thiene e dal centro di sarcedo disponibili tre case a schiera due di testa e una di centro. le case fanno parte di un piccolo complesso trifamiliare, sviluppate in piano terra, piano primo e piano interrato. le case di testa hanno ingresso indipendente, giardino di proprietà, cucina soggiorno, antibagno e bagno al piano terra, due camere e camera matrimoniale e bagno al piano primo, garage doppio in parallelo e centrale termica al piano interrato. le case sono progettate per garantire un basso consumo energetico e saranno in classe a4. l'edificio sarà antisismico, con tecnologia isolante termo-acustico nei solai e nelle pareti, serramenti in pvc con 6 camere d'isolamento e tre guarnizioni e avvolgibili motorizzati in alluminio. Riscaldamento a pavimento con pompa di calore. Predisposizione aria condizionata sia zona giorno che zona notte, pavimentazione in grès nella zona giorno e legno nella zona notte, sanitari sospesi, portoncino blindato, videocitofono, predisposizione antifurto, impianto fotovoltaico da 6kwp, cancelli pedonali in ferro zincato e verniciato.consegna fine 2027 inizio 2028.