home page > Annunci immobiliari in Italia > Veneto > Vicenza > Schio > Negozi uffici capannoni in vendita > Scheda immobile

Negozi uffici capannoni in vendita a Schio

COMPILA IL MODULO SOTTOSTANTE PER RICEVERE MAGGIORI INFORMAZIONI







Invia la richiesta ad altre agenzie
Accetto il trattamento dei miei dati



Studio dl srl

Via luigi dalla via 5/d
36015 Schio (VI)

0445520611    Riferimenti: Dario Dall'Igna

Schio
Prezzo: € 1.200.000
2000



Descrizione:
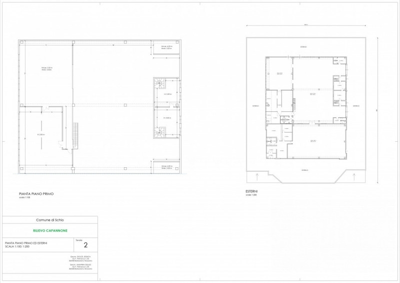
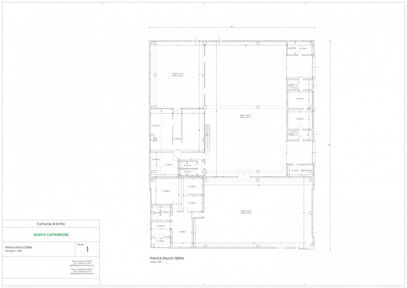
Presentiamo un'opportunità per l'acquisto di un capannone situato nella zona industriale di schio. Con una superficie complessiva di circa 2.000 mq, questo immobile è pronto ad accogliere la vostra attività grazie agli uffici già attrezzati e funzionali.caratteristiche principali:- spazio produttivo di 355 mq con altezza interna di 4,65 m, ideale per lavorazioni leggere.- ampia area operativa di 605 mq con altezza interna di 7 m, affiancata da ulteriori 630 mq distribuiti su due livelli con altezza interna di 3,20 m.- uffici ben arredati che coprono un totale di ben 300 mq.- impianto fotovoltaico potente da ben 58 kwp che garantisce significativi risparmi energetici; il contratto col gse scade nel lontano anno del 2030 e genera attualmente incentivi annui pari a €30.000.- impianto di riscaldamento a pavimento su tutta la superficie coperta del capannone- doppio accesso carraio facilitato da portoni industriali per semplificare le operazioni quotidiane.- vasta area esterna indipendente dedicata alle manovre dei mezzi commerciali inclusa nel lotto totale indipendente da circa mq.3600.- impianto di video sorveglianza e antintrusione compreso.punti forte dell'immobile:questa struttura è subito disponibile e pronta all'uso. La sua versatilità la rende adatta a diverse tipologie d'attività economiche ed è situata in una posizione strategica nel cuore dell'area industriale schiana. Offre facile accesso ai principali snodi stradali e autostradali della regione veneta; rendendo cosù il trasporto delle merci rapido ed efficiente.contattaci oggi stesso presso la nostra agenzia immobiliare al numero per maggiori informazioni o per prenotare una visita.




Caratteristiche immobile:
Codice inserzione: 1762919933
Rif. Annuncio: 127
Provincia: Vicenza
Comune: Schio
Superficie (Mq) : 2000 Mq.
Tipo immobile: Negozi uffici capannoni
Stato immobile: usato

Costi:
Prezzo € 1.200.000


Efficienza energetica: