home page > Annunci immobiliari in Italia > Veneto > Vicenza > Thiene > Case e ville a schiera in vendita > Scheda immobile

Case e ville a schiera in vendita a Thiene

COMPILA IL MODULO SOTTOSTANTE PER RICEVERE MAGGIORI INFORMAZIONI







Invia la richiesta ad altre agenzie
Accetto il trattamento dei miei dati



Houselife

Via lago di garda 80
36015 Schio (VI)

0445.575106    Riferimenti: INFO

Thiene
Prezzo: € 450.000
3
3
210
Piano terra



Descrizione:
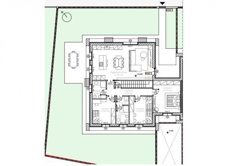
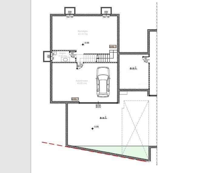
Thiene: in contesto residenziale comodo ai principali servizi, nuova casa a schiera di testa su unico piano, in fase di realizzazione, con ingresso indipendente e scoperto di proprietà. Zona giorno open space, tre camere, tre bagni. Doppia autorimessa e ampio ripostiglio al piano interrato. Possibilità di scelta delle finiture da capitolato. Consegna entro fine 2024. Ulteriori informazioni in ufficio. Cl. En. In fase di definizione. Euro 450.000. Per informazioni tre buoni motivi per acquistare questo immobile:1) contesto residenziale di nuova realizzazione2) indipendenza3) progetto con ottima suddivisione degli spazitrattasi di casa a schiera di testa, in fase di costruzione, situata in nuovo contesto residenziale comodo ai principali servizi cittadini. L'abitazione, affiancata su un lato, si svilupperà su un unico piano fuori terra e uno interrato e sarà cosù composta: zona giorno open space di circa 42 mq composta da cucina abitabile e soggiorno, bagno finestrato, disimpegno, zona notte composta da tre camere e da un secondo bagno finestrato con lavanderia.al piano interrato, direttamente collegato all'abitazione da una scala interna, saranno realizzati un garage doppio in larghezza, un bagno di servizio e un ampio ripostiglio. Completa l'abitazione il giardino privato di 246 mq su tre lati.l'abitazione è in fase di realizzazione, classe energetica prevista a, consegna entro la fine del 2024.possibilità di scelta delle finiture da capitolatoallacciamenti ed accatastamento non inclusi nel prezzo di vendita.ulteriori informazioni, capitolato e progetto in ufficio.le immagini sono fornite al solo scopo illustrativo e pubblicitarioa tutela della privacy, informiamo che l'indirizzo su questo immobile è puramente indicativo.




Caratteristiche immobile:
Codice inserzione: 1758076930
Rif. Annuncio: HL1519
Provincia: Vicenza
Comune: Thiene
Superficie (Mq) : 210 Mq.
Tipo immobile: Case e ville a schiera
Stato immobile: nuovo
Anno costruzione/ristrutturazione: 2023
Piano: Piano terra
Camere: 3
Garage: Doppio
Bagni: 3 + lavanderia

Costi:
Prezzo € 450.000


Efficienza energetica:
Riscaldamento: autonomo