home page > Annunci immobiliari in Italia > Veneto > Treviso > Castello di Godego > Negozi uffici capannoni in affitto > Scheda immobile

Negozi uffici capannoni in affitto a Castello di Godego

COMPILA IL MODULO SOTTOSTANTE PER RICEVERE MAGGIORI INFORMAZIONI







Invia la richiesta ad altre agenzie
Accetto il trattamento dei miei dati



Consulenti immobiliari zardo di zardo nicola e c. Sas

Via g.marconi 75
31030 Castello di Godego (TV)

0423760435

Castello di Godego
Prezzo: € 550
D
70
Piano terra
1



Descrizione:
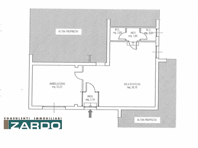
Rif. D-113 (per info | giacomo)proponiamo in locazione un poliambulatorio medico di circa 70 mq, situato al piano terra in una zona strategica, con comodi parcheggi adiacenti.completamente autonomo, doppi servizi e ampia sala d'attesa, il tutto pronto all'uso! per maggiori informazioni contattaci, senza impegno, telefonicamente, via mail o attraverso il modulo di richiesta.ti saranno inviate le informazioni richieste entro 24 ore.mail: .:




Caratteristiche immobile:
Codice inserzione: 1773632209
Rif. Annuncio: D-113
Provincia: Treviso
Comune: Castello di Godego
Superficie (Mq) : 70 Mq.
Tipo immobile: Negozi uffici capannoni
Stato immobile: usato
Piano: Piano terra
Posti auto scoperti: 1 posto auto

Costi:
Prezzo € 550


Efficienza energetica:
Classe energetica: D
Riscaldamento: autonomo