home page > Annunci immobiliari in Italia > Veneto > Treviso > Zero Branco > Negozi uffici capannoni in affitto > Scheda immobile

Negozi uffici capannoni in affitto a Zero Branco

COMPILA IL MODULO SOTTOSTANTE PER RICEVERE MAGGIORI INFORMAZIONI







Invia la richiesta ad altre agenzie
Accetto il trattamento dei miei dati



Gambaro intermediazioni commerciali di marino gambaro

Via g. Gozzi 55
30121 Venezia

0415310735    Riferimenti: Marino Gambaro

Zero Branco
Prezzo: € 3.100
225



Descrizione:
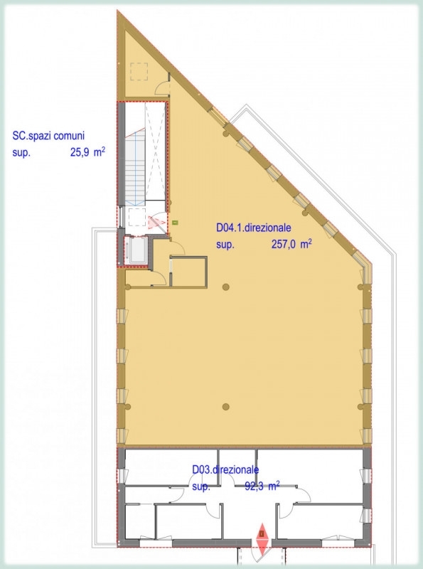
Nostro rif. Uf-203nostra esclusiva, proponiamo in vendita immobile direzionale a/10 al piano primo di 260 mq in immobile di prestigio. l'ufficio farà parte del nuovo sviluppo edilizio 'centro polifunzionale 33.zero' posto lungo la via noalese in posizione strategica di forte passaggio e visibilità, all'interno del quale sorgeranno tre unità commerciali (tra cui la nuova farmacia), cinque unità direzionali e due unità residenziali servite da 30 posti auto e con una nuova viabilità che posizionerà il complesso al centro di zero branco. l'ufficio è un open space molto luminoso grazie alle grandi finestre.l'unità direzionale è prevista in classe energetica a4, dotata di impianti di raffreddamento e riscaldamento, impianto fotovoltaico e ascensore.prime consegne previste nel q1 2026. contattaci per ulteriori informazioni e per non perdere l'occasione di posizionare la tua attività in questo nuovo contesto. prezzo di vendita € 680.000prezzo di locazione €3.100 + iva (3 p. Auto inclusi)




Caratteristiche immobile:
Codice inserzione: 1766031195
Rif. Annuncio: UF-203
Provincia: Treviso
Comune: Zero Branco
Superficie (Mq) : 225 Mq.
Tipo immobile: Negozi uffici capannoni
Stato immobile: nuovo

Costi:
Prezzo € 3.100


Efficienza energetica: