home page > Annunci immobiliari in Italia > Veneto > Treviso > Mansuè > Negozi uffici capannoni in vendita > Scheda immobile

Negozi uffici capannoni in vendita a Mansuè

COMPILA IL MODULO SOTTOSTANTE PER RICEVERE MAGGIORI INFORMAZIONI







Invia la richiesta ad altre agenzie
Accetto il trattamento dei miei dati



Asteaffari.com

Viale g. E l. Olivi 38
31100 Treviso

04221781118    Riferimenti: Stefano Dalto

Mansuè
Prezzo: € 285.600
F
5
1677
1
1



Descrizione:
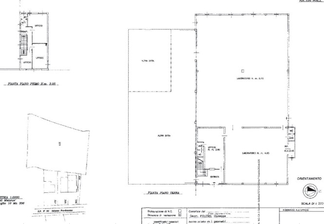
Rif. A.a.75-24vendita all'asta - capannone artigianale con area scoperta in data 10 febbraio 2026descrizione: trattasi di un'unità ad uso capannone artigianale sito nel comune di mansuè (tv) e cosù catastalmente composto: due laboratori, entrata, ufficio, ripostiglio e due bagni con antibagno al piano terra; disimpegno, tre uffici, bagno con antibagno al piano primo; su contigua porzione: magazzino, laboratorio, tre uffici, due bagni di cui uno con antibagno al piano terra; pertinenziale area scoperta di complessivi mq. 1994 catastali. Superficie commerciale complessiva mq.1677.aste-affari fornisce un servizio di assistenza e consulenza tecnica , legale, fiscale e finanziaria su acquisti all'asta e affari immobiliari , al fine di rendere più facile e sicuro l'acquisto di un immobile proveniente dal mercato giudiziario oppure da occasioni presenti sul mercato immobiliare . analisi di fattibilità , tecnica, burocratica, finanziaria , legale , esame problematiche e vincoli , conteggio costi accessori ed occulti, assistenza in tutte le fasi della procedura fino alla consegna delle chiavi dell'immobile .l'acquisto può essere finanziato tramite mutuo , e , ove possibile , anche in pre-asta tramite procedura di saldo-stralcio .soluzioni personalizzate per i debitori .prezzo minimo base asta : euro 285.600,00per info aggiuntive , prenotazione visione, consulenza ed assistenza studio di consulenza : 'aste-affari.com'info :




Caratteristiche immobile:
Codice inserzione: 1761710043
Rif. Annuncio: A.A.75-24
Provincia: Treviso
Comune: Mansuè
Superficie (Mq) : 1677 Mq.
Tipo immobile: Negozi uffici capannoni
Stato immobile: usato
Anno costruzione/ristrutturazione: 1972
Piano: 1
Arredato:
Posti auto scoperti: 1 posto auto
Bagni: 5

Costi:
Prezzo € 285.600


Efficienza energetica:
Classe energetica: F
Riscaldamento: autonomo