home page > Annunci immobiliari in Italia > Veneto > Treviso > Montebelluna > Negozi uffici capannoni in vendita > Scheda immobile

Negozi uffici capannoni in vendita a Montebelluna

COMPILA IL MODULO SOTTOSTANTE PER RICEVERE MAGGIORI INFORMAZIONI







Invia la richiesta ad altre agenzie
Accetto il trattamento dei miei dati



Asteaffari.com

Viale g. E l. Olivi 38
31100 Treviso

04221781118    Riferimenti: Stefano Dalto

Montebelluna
Prezzo: € 33.525
1
60
1



Descrizione:
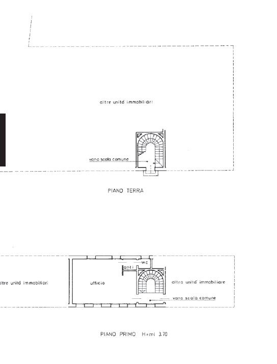
Rif. A.a.414-228vendita all'asta - ufficio al 1° piano in data 28 ottobre 2025descrizione: trattasi di un'unità immobiliare facente parte di un fabbricato sito nel comune di montebelluna (tv), in corso giuseppe mazzini n. 19, e precisamente di un ufficio (interno 1) con antibagno e bagno al piano primo della superficie complessiva di mq.60 ca. l'immobile viene venduto tramite asta giudiziaria, ed il prezzo indicato si riferisce al prezzo minimo accettato per la partecipazione all'asta.aste-affari fornisce un servizio di assistenza e consulenza tecnica, legale, fiscale e finanziaria su acquisti all'asta e affari immobiliari, al fine di rendere più facile e sicuro l'acquisto di un immobile proveniente dal mercato giudiziario oppure da occasioni presenti sul mercato immobiliare.analisi di fattibilità, tecnica, burocratica, finanziaria, legale, esame problematiche e vincoli, conteggio costi accessori ed occulti, assistenza in tutte le fasi della procedura fino alla consegna delle chiavi dell'immobile.l'acquisto può essere finanziato tramite mutuo, e, ove possibile anche in pre-asta tramite procedura di saldo-stralcio.prezzo minimo base asta : da euro 33.525,00per info aggiuntive, prenotazione visione, consulenza ed assistenza su asta :studio di consulenza : 'aste-affari.com'info: un debitore ? chiamaci ! abbiamo soluzioni personalizzate anche per te.




Caratteristiche immobile:
Codice inserzione: 1758076702
Rif. Annuncio: A.A. 414-228
Provincia: Treviso
Comune: Montebelluna
Superficie (Mq) : 60 Mq.
Tipo immobile: Negozi uffici capannoni
Stato immobile: usato
Anno costruzione/ristrutturazione: 2006
Piano: 1
Bagni: 1

Costi:
Prezzo € 33.525


Efficienza energetica:
Classe energetica: Immobile non soggetto all'obbligo di certificazione
Riscaldamento: autonomo