home page > Annunci immobiliari in Italia > Veneto > Treviso > Villorba > Negozi uffici capannoni in vendita > Scheda immobile

Negozi uffici capannoni in vendita a Villorba

COMPILA IL MODULO SOTTOSTANTE PER RICEVERE MAGGIORI INFORMAZIONI







Invia la richiesta ad altre agenzie
Accetto il trattamento dei miei dati



Asteaffari.com

Viale g. E l. Olivi 38
31100 Treviso

04221781118    Riferimenti: Stefano Dalto

Villorba
Prezzo: € 632.250
F
2
3300
1
1



Descrizione:
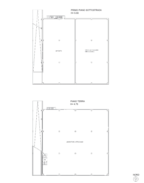
Rif. A.a.426-23vendita all'asta - capannone artigianale in data 13 gennaio 2026descrizione: trattasi di un capannone artigianale sito in comune di villorba (tv), in via thomas alva edison n. 2, e precisamente laboratorio artigianale con locali accessori al piano terra; deposito al piano interrato; unità in corso di costruzione al grezzo avanzato e priva di impianti al piano primo; pertinenziale area scoperta di m.q. 3.726 catastali. Superficie commerciale complessiva mq.3300.prezzo minimo base asta : da euro 632.250,00l'immobile viene venduto tramite asta giudiziaria, ed il prezzo indicato si riferisce al prezzo minimo accettato per la partecipazione all'asta.aste-affari fornisce un servizio di assistenza e consulenza tecnica, legale, fiscale e finanziaria su acquisti all'asta e affari immobiliari, al fine di rendere più facile e sicuro l'acquisto di un immobile proveniente dal mercato giudiziario oppure da occasioni presenti sul mercato immobiliare.analisi di fattibilità, tecnica, burocratica, finanziaria, legale, esame problematiche e vincoli, conteggio costi accessori ed occulti, assistenza in tutte le fasi della procedura fino alla consegna delle chiavi dell'immobile.l'acquisto può essere finanziato tramite mutuo, e, ove possibile anche in pre-asta tramite procedura di saldo-stralcio. per info aggiuntive, prenotazione visione, consulenza ed assistenza su asta : studio di consulenza : 'aste-affari.com' info: sei un debitore ? chiamaci ! abbiamo soluzioni personalizzate anche per te.




Caratteristiche immobile:
Codice inserzione: 1763524325
Rif. Annuncio: A.A. 426-23
Provincia: Treviso
Comune: Villorba
Zona: Villorba  
Superficie (Mq) : 3300 Mq.
Tipo immobile: Negozi uffici capannoni
Stato immobile: usato
Anno costruzione/ristrutturazione: 2001
Piano: 1
Arredato:
Posti auto scoperti: 1 posto auto
Bagni: 2

Costi:
Prezzo € 632.250


Efficienza energetica:
Classe energetica: F
Riscaldamento: autonomo