home page > Annunci immobiliari in Italia > Veneto > Treviso > Villorba > Negozi uffici capannoni in vendita > Scheda immobile

Negozi uffici capannoni in vendita a Villorba

COMPILA IL MODULO SOTTOSTANTE PER RICEVERE MAGGIORI INFORMAZIONI







Invia la richiesta ad altre agenzie
Accetto il trattamento dei miei dati



Abc intermediazioni immobiliari di benedetto celot

Via roma 73/i
31020 Villorba (TV)

3351979215    Riferimenti: ABC info

Villorba
Prezzo: € 140.000
E
2
180
1
1



Descrizione:
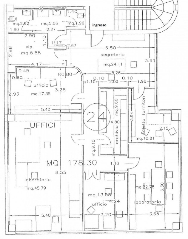
A villorba (tv), in zona industriale, proponiamo in affitto ufficio, dalle ampie metrature, posto al piano primo e ultimo, senza ascensore, composto da: ingresso, zona reception, tre locali uso ufficio, una sala riunione, ampio locale da adibire a laboratorio o sala conferenze, archivio, doppi servizi e area ristoro. L'immobile dispone inoltre di numero quattro posti auto a uso esclusivo. L'immobile è gia suddiviso come da planimetria ed è provvisto di arredo. Ottima esposizione, sud-est-ovest, che permette un luministà naturale in tutti i locali. Contesto tranquillo, ben tenuto e raffinato. Ampia disponibilità di parcheggio.




Caratteristiche immobile:
Codice inserzione: 1770953890
Rif. Annuncio: VUFVLLFA-BC
Provincia: Treviso
Comune: Villorba
Zona: Villorba  
Superficie (Mq) : 180 Mq.
Tipo immobile: Negozi uffici capannoni
Stato immobile: usato
Anno costruzione/ristrutturazione: 2000
Piano: 1
Arredato:
Posti auto scoperti: 1 posto auto
Bagni: 2

Costi:
Prezzo € 140.000


Efficienza energetica:
Classe energetica: E
Indice di prestazione energetica (EPgl): 77.07 kWh/mc annui
Riscaldamento: autonomo