home page > Annunci immobiliari in Italia > Veneto > Treviso > San Biagio di Callalta > Terreni in vendita > Scheda immobile

Terreni in vendita a San Biagio di Callalta

COMPILA IL MODULO SOTTOSTANTE PER RICEVERE MAGGIORI INFORMAZIONI







Invia la richiesta ad altre agenzie
Accetto il trattamento dei miei dati



Zetaeffe di zennari oscar

Via roma 8
31057 Silea (TV)

0422363464    Riferimenti: Oscar Zennari

San Biagio di Callalta
Prezzo: € 500.000
22139



Descrizione:
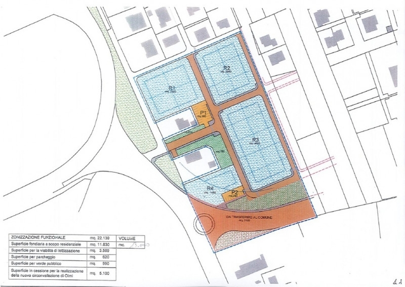
'riferimento usb6 'san biagio di callalta. Fraz. Olmi in zona centrale e servita nella frazione di olmi, proponiamo un'ottima opportunità di investimento: ampio terreno edificabile residenziale con una superficie totale complessiva di ben 22.129 mq., da urbanizzare, con una superficie da sfruttare a scopo residenziale di 11.830 mq e con una volumetria di 13.000 mc., cosù come da convenzione già stipulata con il comune di san biagio di callalta.il terreno presenta spazi generosi che consentono progettazioni versatili per la realizzazione di prestigiose soluzioni abitative o complessi residenziali che soddisfino le moderne esigenze : ville singole, bifamiliari o palazzine di poche unità formate da appartamenti di due o tre camere molto richiesti in zona.la posizione del terreno è strategica: immersa nel verde della campagna veneta e al contempo facilmente accessibile dai principali collegamenti stradali, permette ai futuri residenti sia il comfort di una vita tranquilla che la comodità dei servizi urbani nelle vicinanze. A pochi minuti il centro commerciale tiziano ed a breve distanza scuole, supermercati e tutti i principali servizi essenziali per il quotidiano vivere, offre un ambiente ideale per famiglie alla ricerca della tranquillità senza rinunciare alla disponibilità delle infrastrutture necessarie per il vivere quotidiano.è un'occasione da non perdere tanto per costruttori quanto per privati!l'indirizzo riportato è puramente indicativo del singolo comune di ubicazione dell'immobile trattato.visita il nostro sito https://idhea.it/ per ulteriori propostee servizi come la valutazione gratuita.




Caratteristiche immobile:
Codice inserzione: 1758163578
Rif. Annuncio: USB6
Provincia: Treviso
Comune: San Biagio di Callalta
Superficie (Mq) : 22139 Mq.
Tipo immobile: Terreni

Costi:
Prezzo € 500.000


Efficienza energetica: