home page > Annunci immobiliari in Italia > Veneto > Treviso > Treviso > Terreni in vendita > Scheda immobile

Terreni in vendita a Treviso

COMPILA IL MODULO SOTTOSTANTE PER RICEVERE MAGGIORI INFORMAZIONI







Invia la richiesta ad altre agenzie
Accetto il trattamento dei miei dati



Treviso casa snc di craparotta e. & c.

Via frà giocondo 45
31100 Treviso

0422397938    Riferimenti: Amministratore CRAPAROTTA

Treviso
Prezzo: € 250.000
3654



Descrizione:
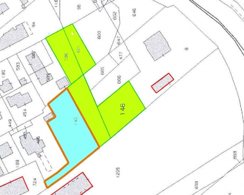
Treviso - san giuseppein zona residenziale, nelle immediate vicinanze di tutti i servizi di prima nevcessità, proponiamo in vendita area edificabile a destinazione residenziale.l'area che proponiamo in vendita ha una superficie fondiaria di mq 3.654 circa con una capacità edificatoria di mc 1.950,00 (volumetria urbanistica).sull'area è stato fatto uno studio di fattibilità per la realizzazione di nr. 4 villette a schiera che si sviluppano al piano terra e primo, immerse nel verde, con ampi spazi privati esterni.la zona è particolarmente interessante, immersa nella natura, e al contempo consente di raggiungere rapidamente la città treviso.prezzo euro 250.000,00.il lotto edificabile è visitabile tutti i giorni previo appuntamento telefonico.per maggiori informazioni o per fissare un appuntamento potete contattarci al seguente numero di telefono:-agenzia treviso casa tel visita anche il nostro sito:




Caratteristiche immobile:
Codice inserzione: 1771213715
Rif. Annuncio: TV363
Provincia: Treviso
Comune: Treviso
Superficie (Mq) : 3654 Mq.
Tipo immobile: Terreni

Costi:
Prezzo € 250.000


Efficienza energetica:
Classe energetica: Immobile non soggetto all'obbligo di certificazione