home page > Annunci immobiliari in Italia > Toscana > Massa-Carrara > Massa > appartamenti in vendita > Scheda immobile

Appartamento in vendita a Massa

COMPILA IL MODULO SOTTOSTANTE PER RICEVERE MAGGIORI INFORMAZIONI







Invia la richiesta ad altre agenzie
Accetto il trattamento dei miei dati



Pelliccia immobiliare

Via dante, 39
54100 Massa (MS)

3491376371    Riferimenti: Ilenia Pelliccia

Massa
Prezzo: € 250.000
G
2
1
150
1



Descrizione:
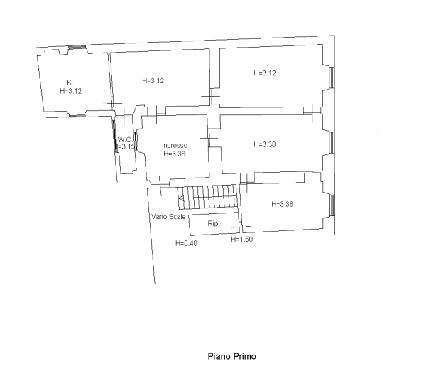
Rif: rv229 - massa, centro storico.proponiamo in vendita ampio appartamento sito al piano primo di palazzo storico nel centro di massa.l'immobile è composto da sei vani, oltre ripostiglio e servizio igienico.completamente da ristrutturare offre grandi spazi da ridisegnare secondo proprio gusto ed esigenze.




Caratteristiche immobile:
Codice inserzione: 1767923831
Rif. Annuncio: 1384273/2033/RV229
Provincia: Massa-Carrara
Comune: Massa
Zona: Centro storico  
Superficie (Mq) : 150 Mq.
Tipo immobile: Appartamento
Stato immobile: usato da riattare
Anno costruzione/ristrutturazione: 1940
Piano: 1
Camere: 2
Bagni: 1

Costi:
Prezzo € 250.000


Efficienza energetica:
Classe energetica: G
Indice di prestazione energetica (EPgl): 132.99 kWh/mq annui