home page > Annunci immobiliari in Italia > Toscana > Massa-Carrara > Massa > appartamenti in vendita > Scheda immobile

Appartamento in vendita a Massa

COMPILA IL MODULO SOTTOSTANTE PER RICEVERE MAGGIORI INFORMAZIONI







Invia la richiesta ad altre agenzie
Accetto il trattamento dei miei dati



Bonuccelli immobiliare

Via vittorio veneto 99
54100 Massa (MS)

3383671348    Riferimenti: Nicola Bonuccelli

Massa
Prezzo: € 250.000
G
2
1
150
1



Descrizione:
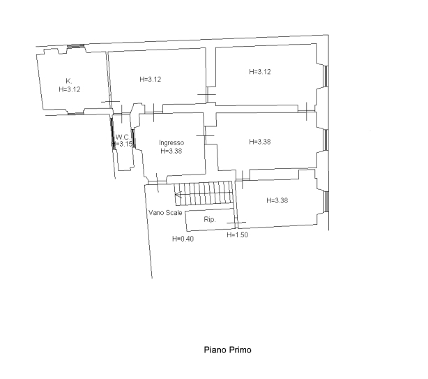
Rif: rv229 - massa, centro storico.proponiamo in vendita ampio appartamento sito al piano primo di palazzo storico nel centro di massa.l'immobile è composto da sei vani, oltre ripostiglio e servizio igienico.completamente da ristrutturare offre grandi spazi da ridisegnare secondo proprio gusto ed esigenze.foto indicative ottenute mediante rendering




Caratteristiche immobile:
Codice inserzione: 1772416281
Rif. Annuncio: 1397220/637/RV229
Provincia: Massa-Carrara
Comune: Massa
Zona: Centro storico  
Superficie (Mq) : 150 Mq.
Tipo immobile: Appartamento
Stato immobile: usato da riattare
Anno costruzione/ristrutturazione: 1940
Piano: 1
Camere: 2
Bagni: 1

Costi:
Prezzo € 250.000


Efficienza energetica:
Classe energetica: G
Indice di prestazione energetica (EPgl): 132.99 kWh/mq annui