home page > Annunci immobiliari in Italia > Toscana > Massa-Carrara > Massa > appartamenti in vendita > Scheda immobile

Appartamento in vendita a Massa

COMPILA IL MODULO SOTTOSTANTE PER RICEVERE MAGGIORI INFORMAZIONI







Invia la richiesta ad altre agenzie
Accetto il trattamento dei miei dati



Domina immobiliare

Via puccini 4
54100 Massa (MS)

0585246463    Riferimenti: Simona Di nunzio

Massa
Prezzo: € 349.000
E
2
2
106
1
2



Descrizione:
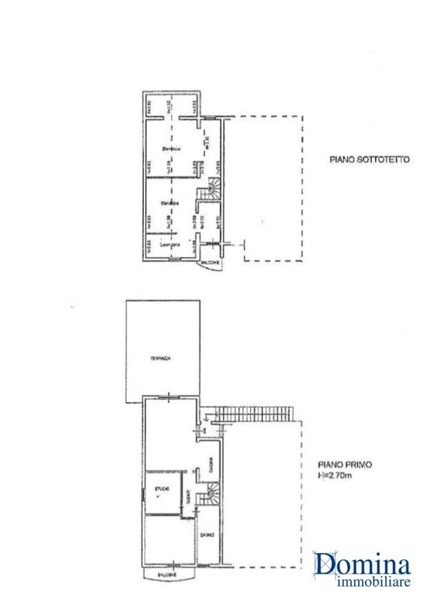
Rif: massa - a poche centinaia di metri dal centro, in elegante contesto quadrifamiliare , splendido appartamento di 106 mq , completamente ristrutturato e personalizzato con gusto e pregio, (costruzione del 2007) situato al primo piano e internamente disposto su due livelli. l' immobile è una soluzione moderna, raffinata e ideale per clienti che cercano una casa pronta da vivere con stile e confort.l'immobile si distingue per la cura dei dettagli e per ambienti accoglienti che trasmettono pace e quiete.l'ingresso introduce in una luminosissima zona giorno con ampia sala e cucina separata, disimpegno con camera matrimoniale balconata con vista castello, cameretta/studio e bagno con vasca, molto bello , con eleganti mosaici.al piano superiore , ampia zona notte mansardata ( altezza al colmo circa 3 metri) suddivisa in zona notte, studio e bagno con doccia ed illuminata oltre che da finestre da grandi lucernai velox.ma la chicca dell' immobile e la splendida terrazza di 35 mq , paradiso per cene con amici o semplici colazioni, dotata di pergotenda .completano la proposta un posto auto di proprietà, piuttosto lungo ,che potrebbe anche ospitare due utilitarie in contemporanea.viene venduta parzialmente arredata, climatizzata e allarmata perimetralmente.




Caratteristiche immobile:
Codice inserzione: 1773280208
Rif. Annuncio: 1399493/420/1178
Provincia: Massa-Carrara
Comune: Massa
Superficie (Mq) : 106 Mq.
Tipo immobile: Appartamento
Stato immobile: recente
Anno costruzione/ristrutturazione: 2007
Piano: 1
Camere: 2
Arredato:
Posti auto scoperti: 2 posti auto
Bagni: 2

Costi:
Prezzo € 349.000


Efficienza energetica:
Classe energetica: E
Indice di prestazione energetica (EPgl): 99.44 kWh/mq annui